■ 국민임대 주택단지 개요
단지명 : 화성태안6 (안화동마을 주공6단지 아파트)
단지 위치 : 경기도 화성시 병점2로 141 (병점동 850 안화동마을)
건설 호수 : 10개동 990호
최초입주 : 2004년 4월

단지명 : 화성태안8 (안화동마을 주공8단지 아파트)
단지 위치 : 경기도 화성시 병점3로 157 (병점동 848 안화동마을)
건설 호수 : 9개동 836호
최초입주 : 2004년 9월

단지명 : 화성태안12 (진안골마을 주공12단지 아파트)
단지 위치 : 경기도 화성시 병점4로 103 (진안동 910 진안골마을)
건설 호수 : 13개동 1178호
최초입주 : 2004년 4월

■ 모집 주택형 : (입주자모집공고일 : 2020.9.7)

■ LH 국민임대 아파트 임대조건 (입주자모집공고일 : 2020.9.7)

▪ 임대조건의 임대보증금 및 월임대료는 모집공고일 현재 기준이며, 예비입주자로 선정된 고객께서 임대차계약 을 체결하는 시점에 당해 주택의 임대조건이 변경된 때에는 변경된 임대조건으로 계약하셔야 합니다.
▪ 월임대료의 보증금 전환은 임차인의 선택사항으로서 100만원 단위로 보증금 추가 납부가 가능합니다.
▪ 위 최대전환시 임대조건은 월임대료의 임대보증금으로 전환시 이율 6%, 임대보증금의 월임대료로 전환시 이율 3% 를 적용하여 산정한 것으로서, 향후 전환이율이 변경되는 때에는 변경된 이율을 적용하여 다시 산정하게 됩니다.
■ LH 국민임대 아파트 모집일정 (입주자모집공고일 : 2020.9.7)


* LH 국민임대는 공실발생 상황에 따라 연간 2~3회 예비자 모집을 하며 비인기지역의 경우 소득 및 단독세대 면적제한 요건이 완화 되기도 하니 관심지역은 수시로 공고를 확인하면 됩니다.
* 신청방법과 상세기준은 아래 참고 링크에서 공고문을 다운받아 확인해야 합니다.
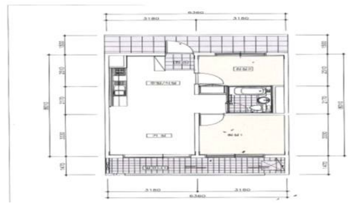
■ LH 국민임대 아파트 평면도
화성태안6 46형 평면도

화성태안8 51형 평면도

화성태안12 36형 평면도

화성태안12 45형 평면도

■ LH 국민임대 아파트 입주신청 자격요건 및 선정기준
■ LH 국민임대 공고문 확인 : LH청약센터(https://apply.LH.or.kr)
| LH청약센터 공고문 확인 순서
임대주택 > 임대정보 > 국민임대 > 지역선택 > 검색(마감된 이전 공고를 확인하려면 기간, 상태 변경 후 검색) |
'국민임대 > 인천,경기' 카테고리의 다른 글
| LH 인천주안역 오피스텔 선착순 입주자 모집 공고 요약 (0) | 2020.10.21 |
|---|---|
| 화성시 동탄, 향남, 봉담, 남양 LH국민임대주택 입주자격완화 임대정보 (0) | 2020.10.19 |
| 김포지역 LH 국민임대 아파트 임대정보 (0) | 2020.10.18 |
| 남양주, 가평군 지역 LH 국민임대 아파트 임대정보 (0) | 2020.10.18 |
| 고양시 LH 국민임대 아파트 임대정보 (0) | 2020.10.17 |