■ 영구임대 주택단지 개요
단지명 : 옹진백령 영구임대
단지 위치 : 인천광역시 옹진군 백령면 백령로 278번길 133-31
건설 호수 : 영구임대주택 30호
최초입주 : 2020년 7월
■ 공급 주택
■ 임대조건(임대보증금, 월임대료) (입주자모집공고일 : 2021.1.5)
■ 공급일정 (입주자모집공고일 : 2021.1.5)
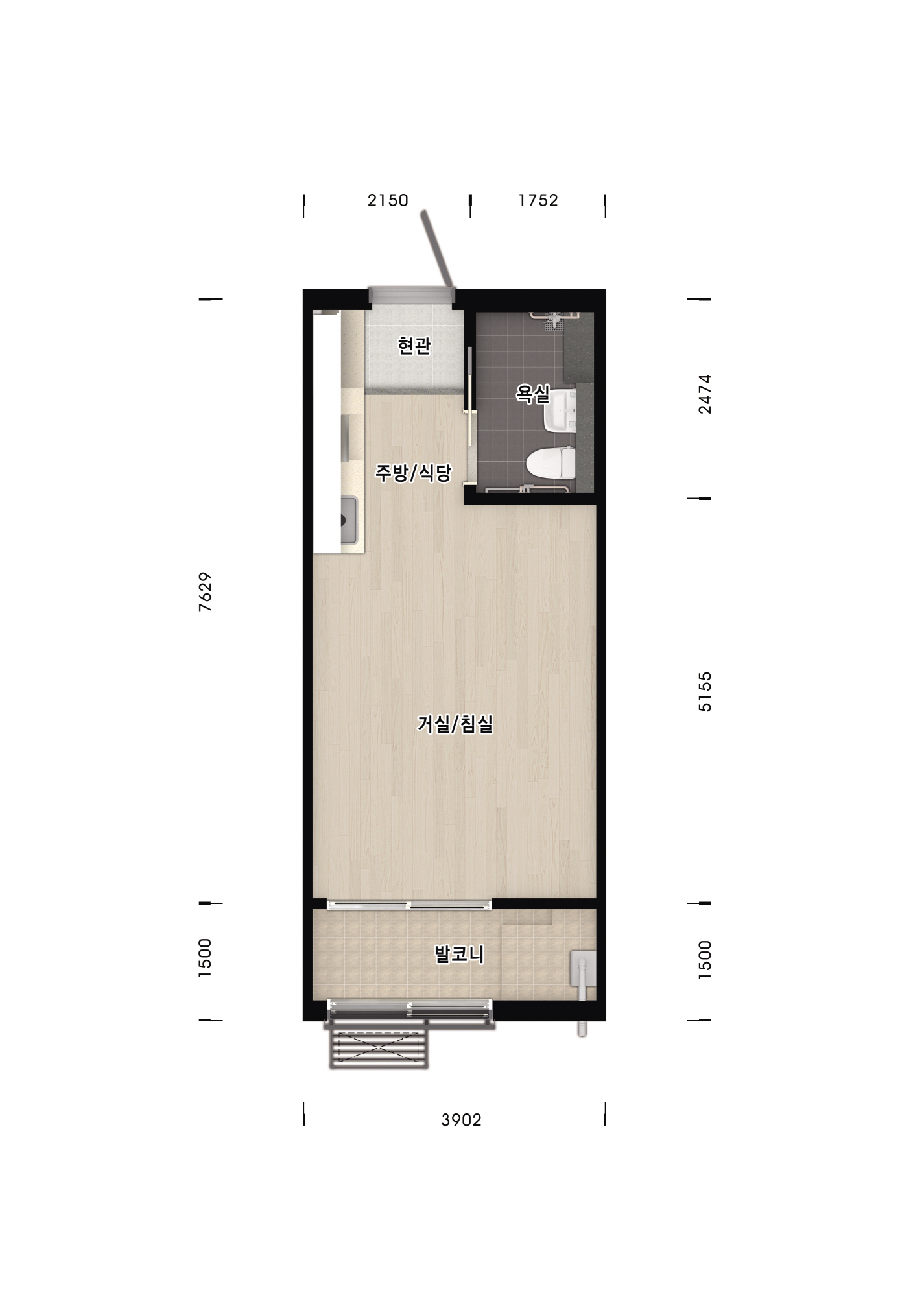
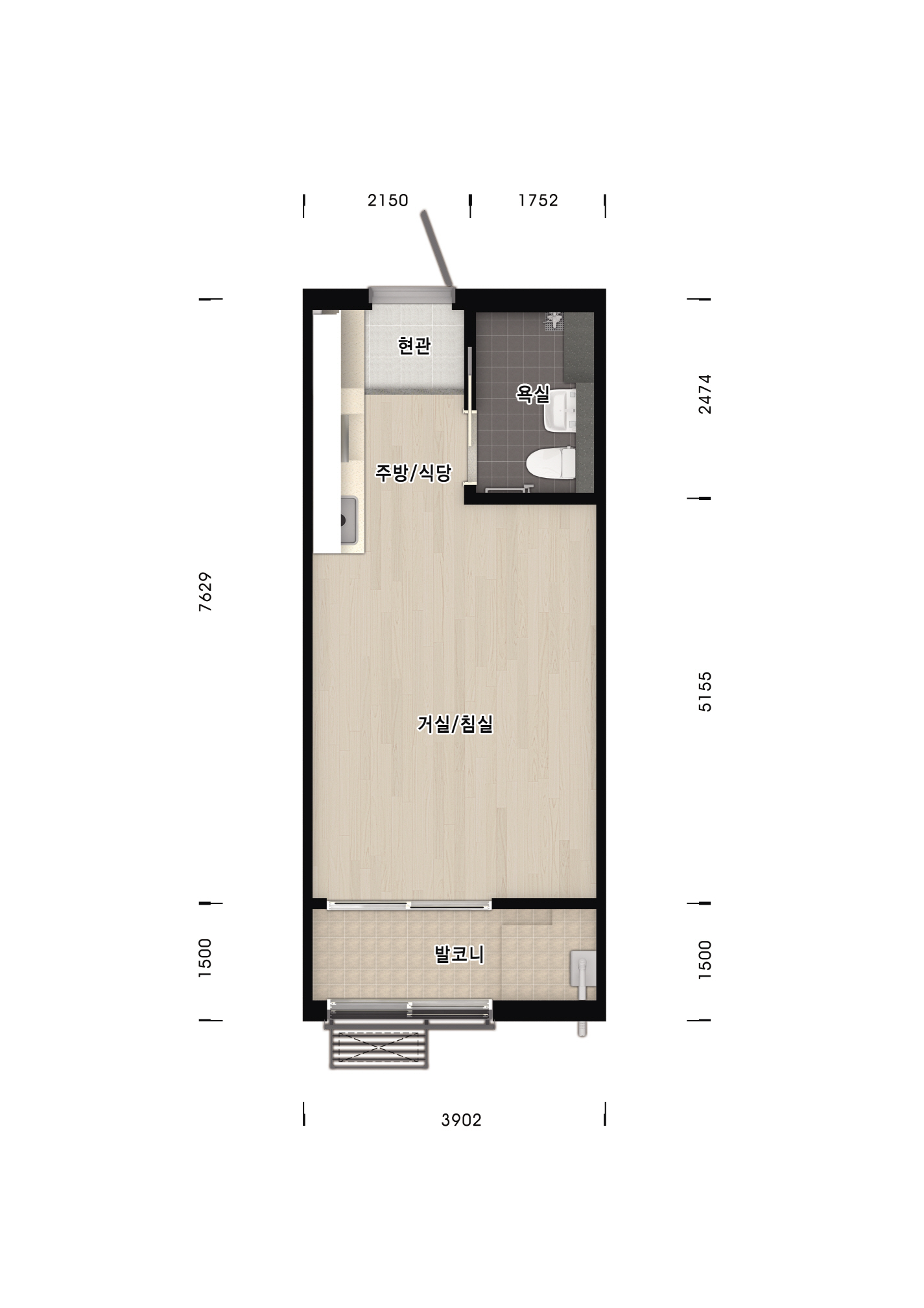
■ 평면도
■ 신청방법과 절차, 기준 등 상세내용은 아래 LH청약센터에서 다운 받아 확인해야 합니다.
■ 행정서류 온라인 발급 사이트 및 PDF 저장기능 제공 현황
■ LH 영구임대 공고문 확인 : LH청약센터(https://apply.LH.or.kr)
LH청약센터 공고문 확인 순서
임대주택 > 임대정보 > 영구임대 > 지역선택 > 검색(마감된 이전 공고를 확인하려면 기간, 상태 변경 후 검색) |
'영구임대' 카테고리의 다른 글
계룡대실지구 4BL 영구임대주택 임대정보, 평면도, 투시도 (0) | 2021.01.06 |
---|---|
철원갈말 영구임대주택 입주자 모집 공고 요약 (0) | 2020.12.31 |
양산사송 영구임대주택 입주자 모집, 평면도, 투시도 (0) | 2020.12.30 |
창녕말흘 영구임대주택 입주자 모집 공고 요약, 평면도, 투시도 (0) | 2020.12.30 |
정선신동 영구임대주택 입주자 모집 공고 요약 (0) | 2020.12.18 |